Die DOBNER GUTWERT GmbH gehört zur Unternehmensgruppe
BRF FRIEDRICHSHAIN GmbH und ist Hersteller der abgehängten
ORIGINAL DOBNER Metalldecken

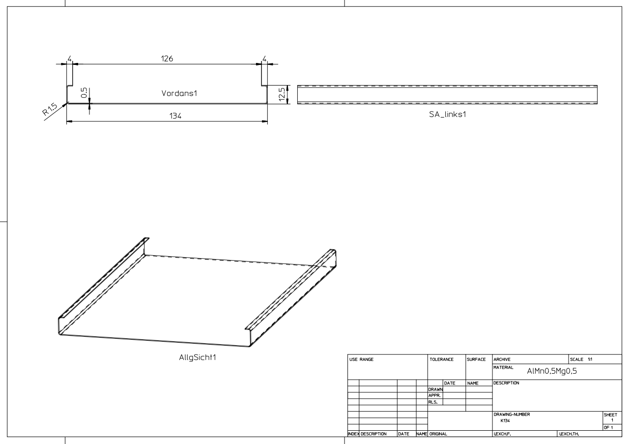
Abgehängte ORIGINAL DOBNER Aluminium-Paneeldecke Typ K-134 / KP-134
mit offenen Fugen